Anaxágoras 429

Categoría: Residencial
Ubicación: Ciudad de México.
Año: 2024
Diseño Arquitectónico: Boué Arquitectos, Arq. Gerardo Boué
Área construida: 124.96 m2
Renders: Fernando Aramoni.

Descripción del proyecto:

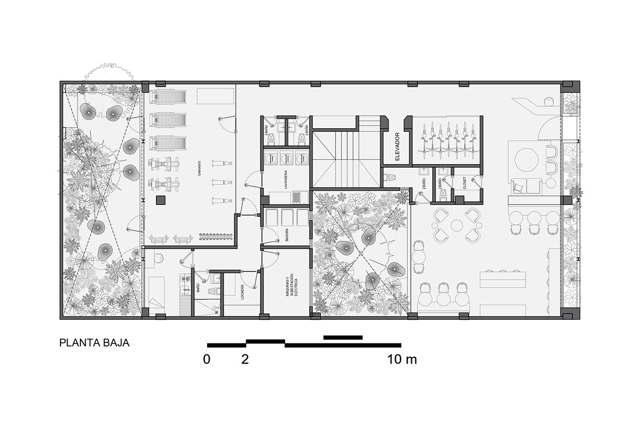
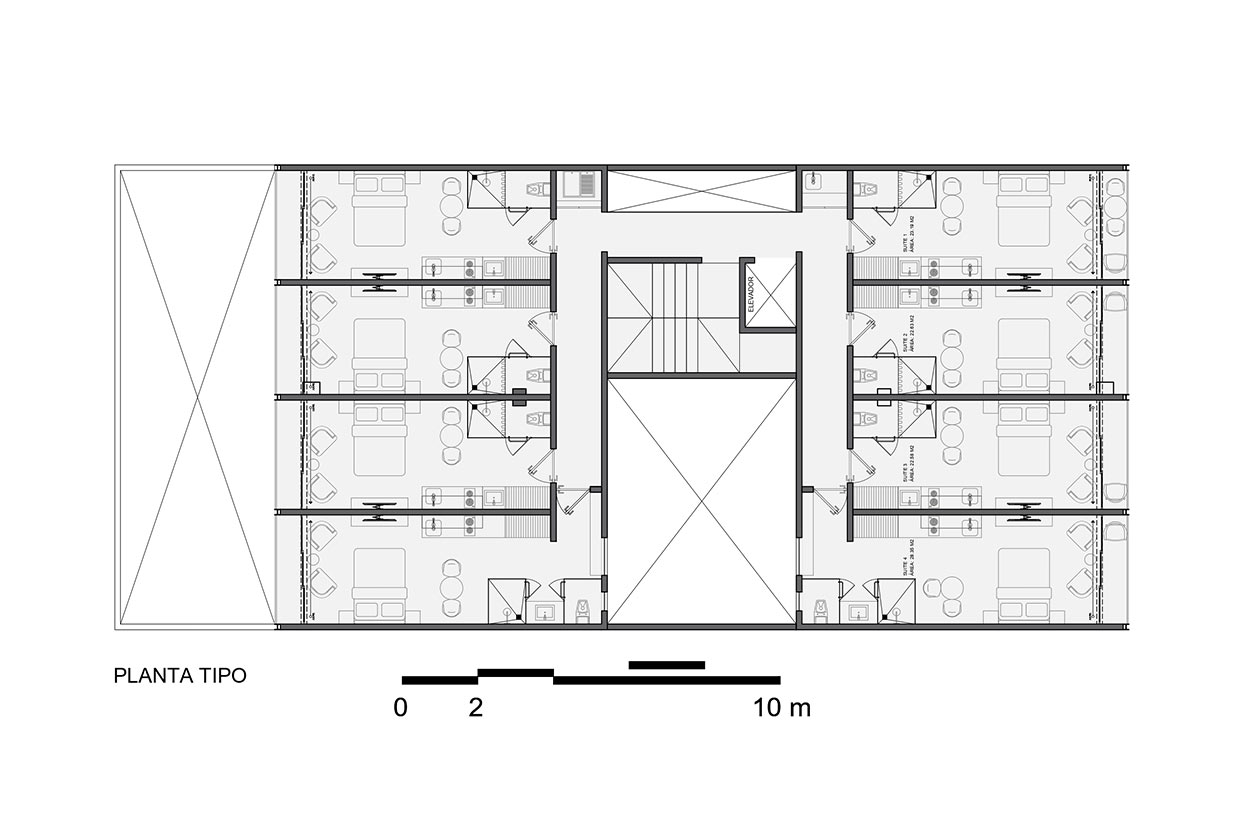
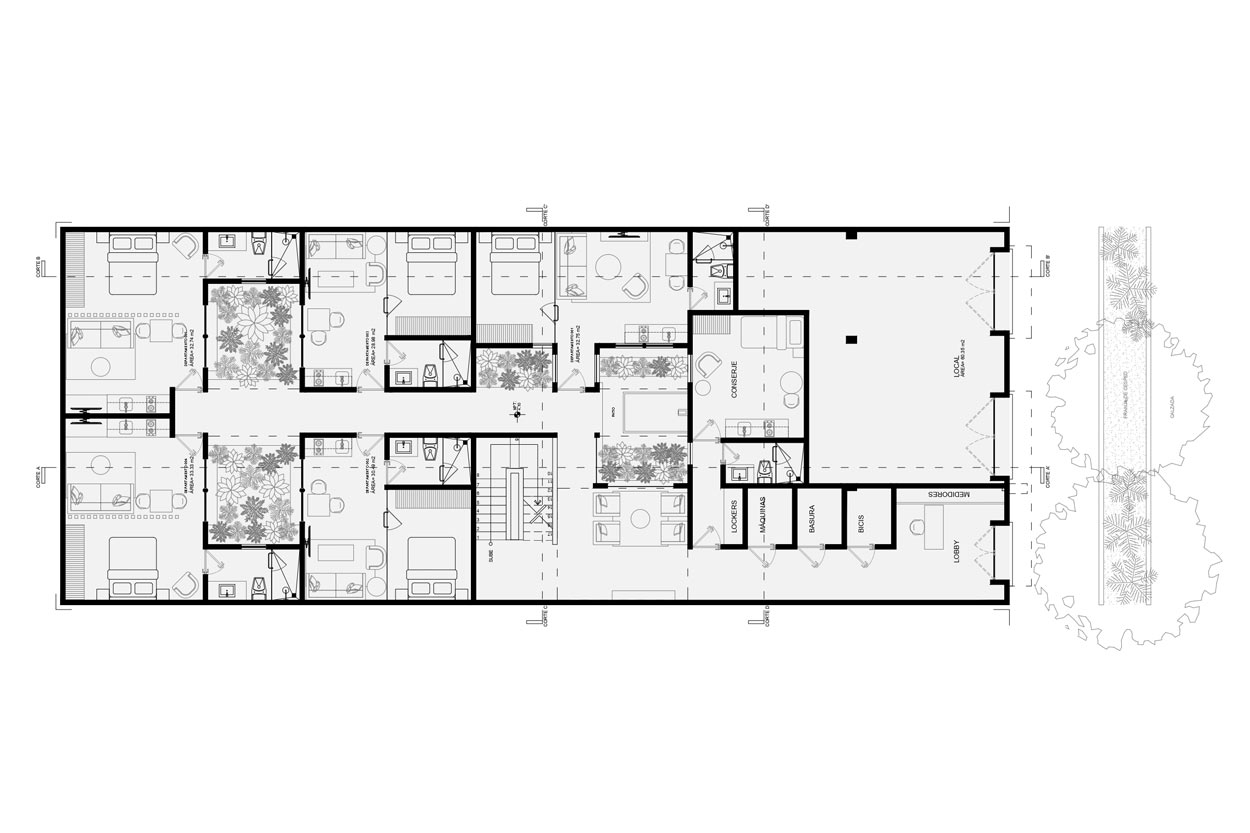
Ubicado en la colonia Narvarte, Anaxágoras 429 desarrolla un esquema de vivienda mínima que optimiza espacio, recursos y conectividad. El proyecto ofrece unidades habitacionales eficientes y asequibles, pensadas para jóvenes profesionales y nuevos núcleos urbanos que valoran la sustentabilidad, la ubicación y la calidad espacial.

Anaxágoras 429

Categoría: Residencial
Ubicación: Ciudad de México.
Año: 2024
Diseño Arquitectónico: Boué Arquitectos, Arq. Gerardo Boué
Área construida: 124.96 m2
Renders: Fernando Aramoni.

Descripción del proyecto:

Ubicado en la colonia Narvarte, Anaxágoras 429 desarrolla un esquema de vivienda mínima que optimiza espacio, recursos y conectividad. El proyecto ofrece unidades habitacionales eficientes y asequibles, pensadas para jóvenes profesionales y nuevos núcleos urbanos que valoran la sustentabilidad, la ubicación y la calidad espacial.