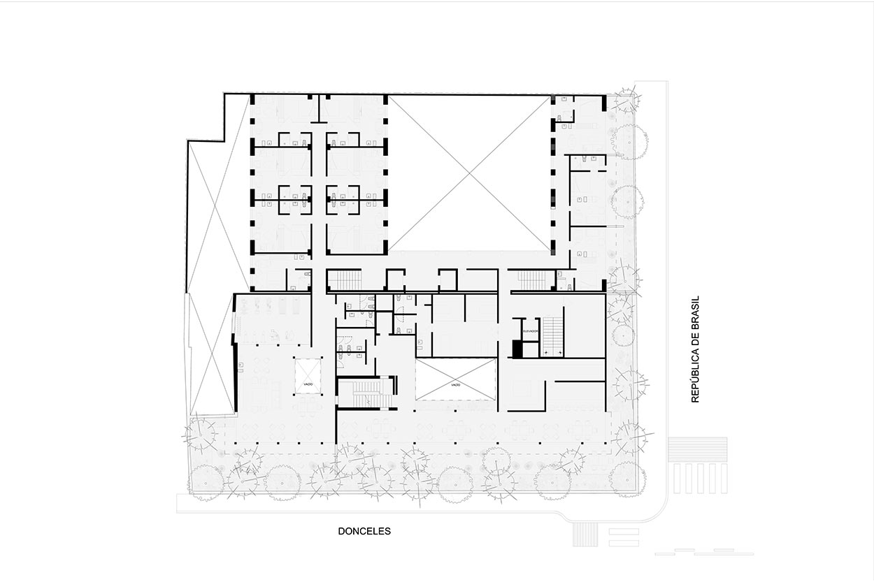
Casa Donceles

Categoría: Usos mixtos
Año: 2025
Diseño arquitectónico: Boué Arquitectos, Arq. Gerardo Boué
Ubicación: Ciudad de México
Área: 7,792.78 m2
Renders: Ana Sofía Rábago, Patricio Navarro y Fernando Aramoni

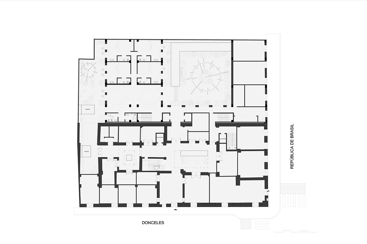
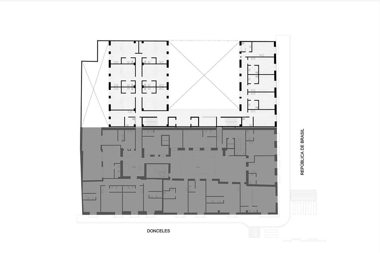
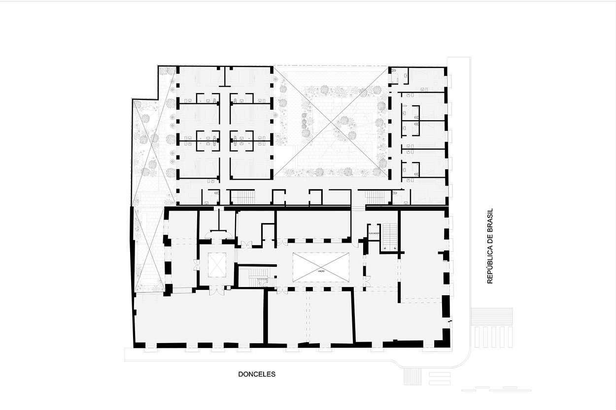
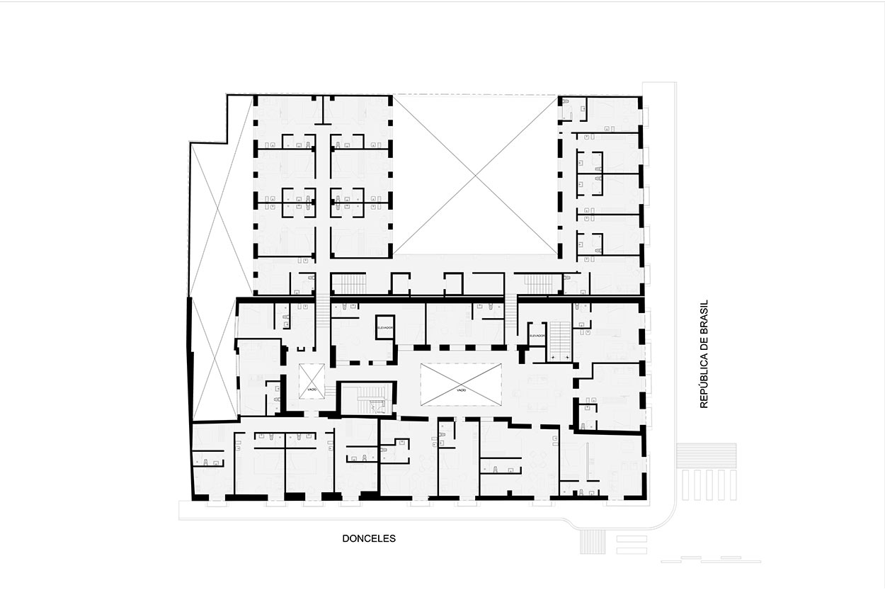
Descripción del proyecto:

A metros del Zócalo, Casa Donceles convierte lo cotidiano en sorpresa: un conjunto de usos mixtos florece donde antes hubo un centro comercial, rodeado de jardines interiores que invitan a quedarse. Es un gesto mínimo con impacto máximo, donde la ciudad se toca con suavidad para volver a respirar.

Casa Donceles

Categoría: Usos mixtos
Año: 2025
Diseño arquitectónico: Boué Arquitectos, Arq. Gerardo Boué
Ubicación: Ciudad de México
Área: 7,792.78 m2
Renders: Ana Sofía Rábago, Patricio Navarro y Fernando Aramoni

Descripción del proyecto:

A metros del Zócalo, Casa Donceles convierte lo cotidiano en sorpresa: un conjunto de usos mixtos florece donde antes hubo un centro comercial, rodeado de jardines interiores que invitan a quedarse. Es un gesto mínimo con impacto máximo, donde la ciudad se toca con suavidad para volver a respirar.