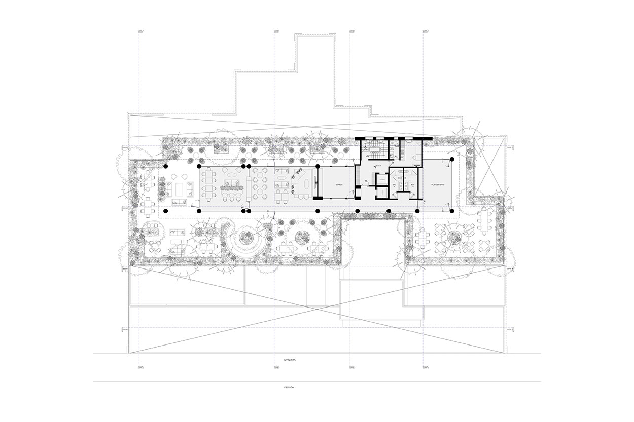
Casa Independencia

Categoría: Usos mixtos
Año: 2025
Diseño arquitectónico: Boué Arquitectos, Arq. Gerardo Boué
Ubicación: Ciudad de México
Área: 6,310.32 m2
Renders: Ana Sofía Rábago y Fernando Aramoni

Descripción del proyecto:

En el corazón palpitante de la ciudad, a una cuadra de Bellas Artes, Casa Independencia emerge como un respiro vertical. Sus patios vivos, terrazas abiertas y espacios compartidos invitan a habitar el Centro Histórico desde una nueva perspectiva: más libre, más cómoda, más humana. Es una forma de vivir el centro sin renunciar al aire, la luz y el movimiento.

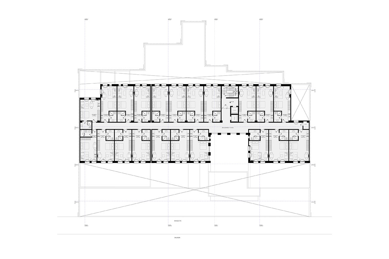
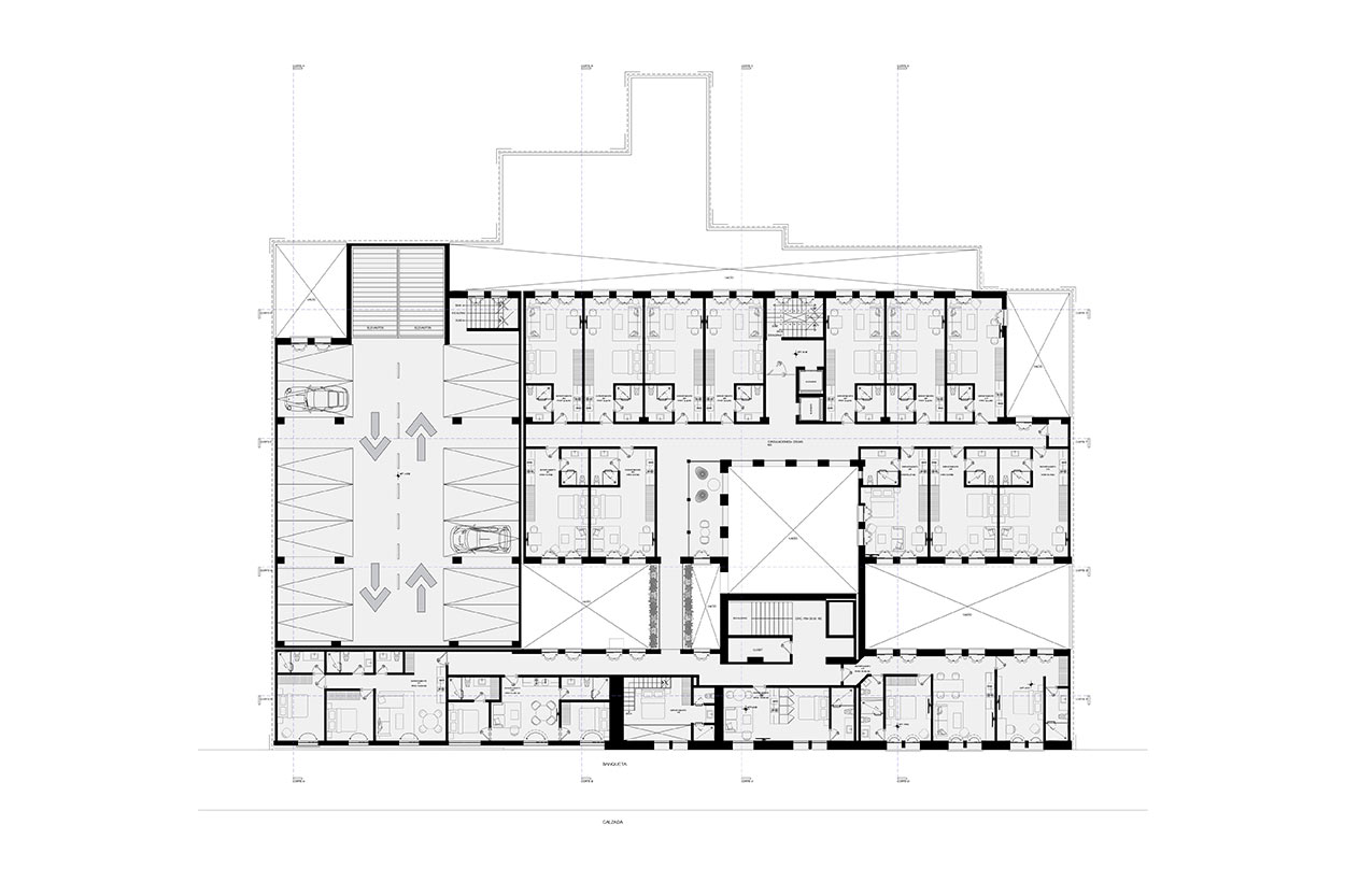
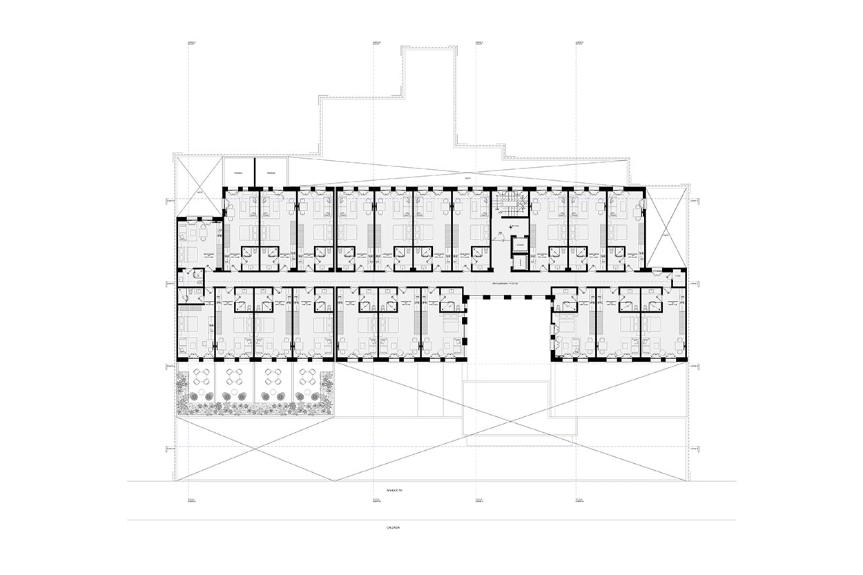
Casa Independencia

Categoría: Usos mixtos
Año: 2025
Diseño arquitectónico: Boué Arquitectos, Arq. Gerardo Boué
Ubicación: Ciudad de México
Área: 6,310.32 m2
Renders: Ana Sofía Rábago y Fernando Aramoni

Descripción del proyecto:

En el corazón palpitante de la ciudad, a una cuadra de Bellas Artes, Casa Independencia emerge como un respiro vertical. Sus patios vivos, terrazas abiertas y espacios compartidos invitan a habitar el Centro Histórico desde una nueva perspectiva: más libre, más cómoda, más humana. Es una forma de vivir el centro sin renunciar al aire, la luz y el movimiento.