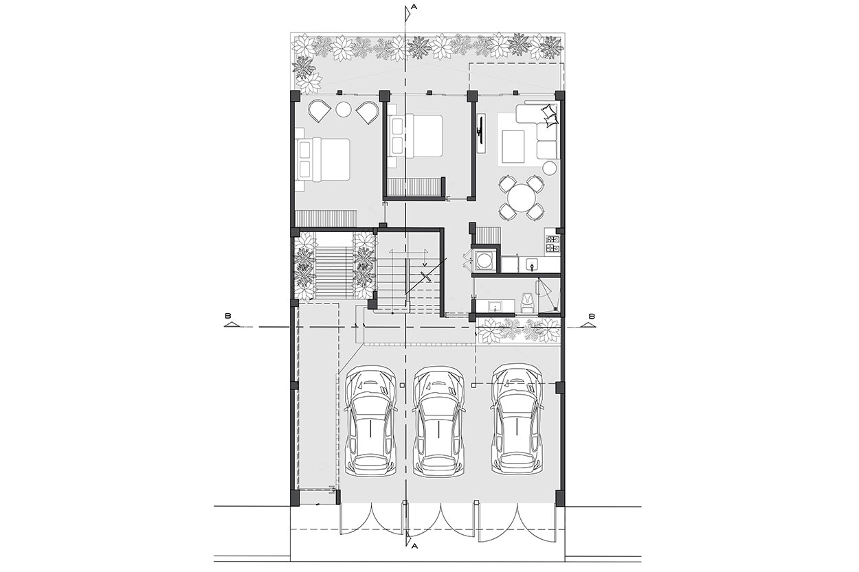
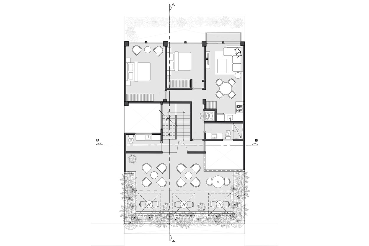
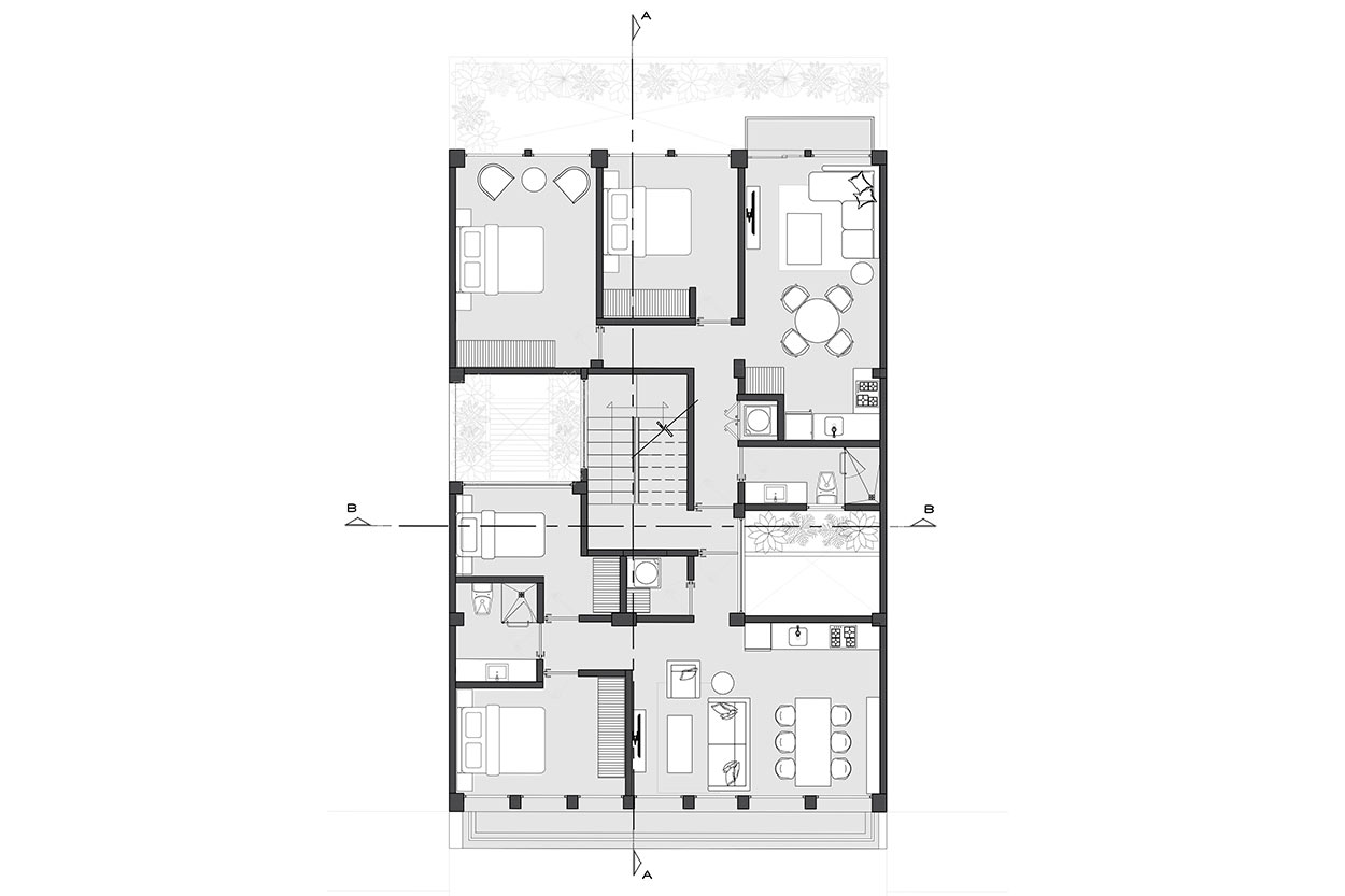
Casa Montes de Oca

Categoría: Residencial
Ubicación: Ciudad de México
Año: 2024
Diseño Arquitectónico: Boué Arquitectos, Arq. Gerardo Boué
Área construida: 650.6 m2
Renders: Ana Sofía Rábago, Patricio Navarro y Fernando Aramoni.

Descripción del proyecto:

En el corazón de la Condesa, Casa Montes de Oca transforma una estructura obsoleta en un edificio contemporáneo, pensado para quienes buscan calidad de vida en una de las zonas más deseadas de la ciudad. A través del reciclaje arquitectónico y la incorporación de amenidades urbanas, el proyecto reinserta el inmueble en el mercado con una propuesta actual, funcional y de alto valor.

Casa Montes de Oca

Casa Montes de Oca

Categoría: Residencial
Ubicación: Ciudad de México
Año: 2024
Diseño Arquitectónico: Boué Arquitectos, Arq. Gerardo Boué
Área construida: 650.6 m2
Renders: Ana Sofía Rábago, Patricio Navarro y Fernando Aramoni.

Descripción del proyecto:

En el corazón de la Condesa, Casa Montes de Oca transforma una estructura obsoleta en un edificio contemporáneo, pensado para quienes buscan calidad de vida en una de las zonas más deseadas de la ciudad. A través del reciclaje arquitectónico y la incorporación de amenidades urbanas, el proyecto reinserta el inmueble en el mercado con una propuesta actual, funcional y de alto valor.