Casa Reforma

Categoría: Usos mixtos
Año: 2025
Diseño arquitectónico: Boué Arquitectos, Arq. Gerardo Boué
Ubicación: Torreón, Coahuila, México
Área: 10,096.93 m2
Renders: Ana Sofía Rábago y Fernando Aramoni

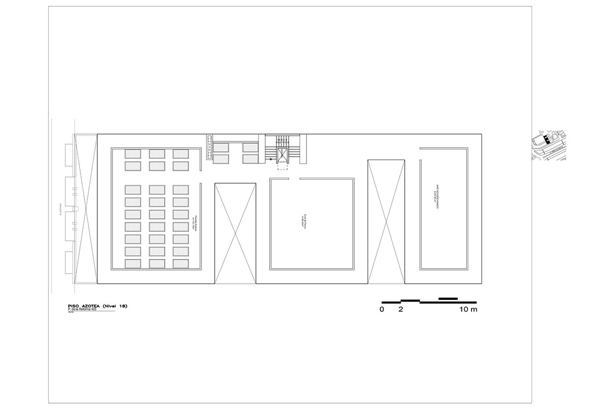
Descripción del proyecto:

Ubicado sobre Paseo de la Reforma, Casa Reforma reconvierte un edificio de oficinas obsoleto en un proyecto de alojamiento contemporáneo. A través de una estrategia de reciclaje arquitectónico, el edificio se adapta a las necesidades del siglo XXI, prolongando su vida útil dando prioridad a la eficiencia, la rentabilidad y la permanencia urbana sin recurrir a la demolición.

Casa Reforma

Categoría: Usos mixtos
Año: 2025
Diseño arquitectónico: Boué Arquitectos, Arq. Gerardo Boué
Ubicación: Torreón, Coahuila, México
Área: 10,096.93 m2
Renders: Ana Sofía Rábago y Fernando Aramoni

Descripción del proyecto:

Ubicado sobre Paseo de la Reforma, Casa Reforma reconvierte un edificio de oficinas obsoleto en un proyecto de alojamiento contemporáneo. A través de una estrategia de reciclaje arquitectónico, el edificio se adapta a las necesidades del siglo XXI, prolongando su vida útil dando prioridad a la eficiencia, la rentabilidad y la permanencia urbana sin recurrir a la demolición.