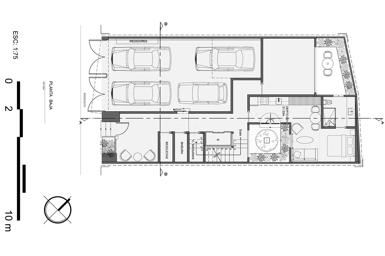
Casa Theirs

Categoría: Residencial
Ubicación: Ciudad de México
Año: 2024
Diseño Arquitectónico: Boué Arquitectos, Arq. Gerardo Boué
Área construida: 663.22 m2
Renders: Ana Sofía Rábago, Fernando Aramoni.

Descripción del proyecto:

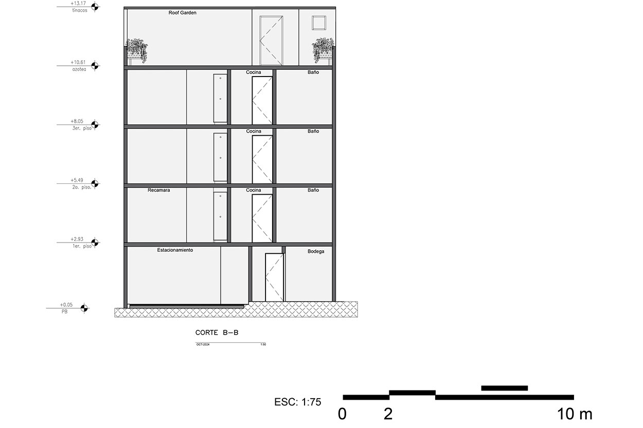
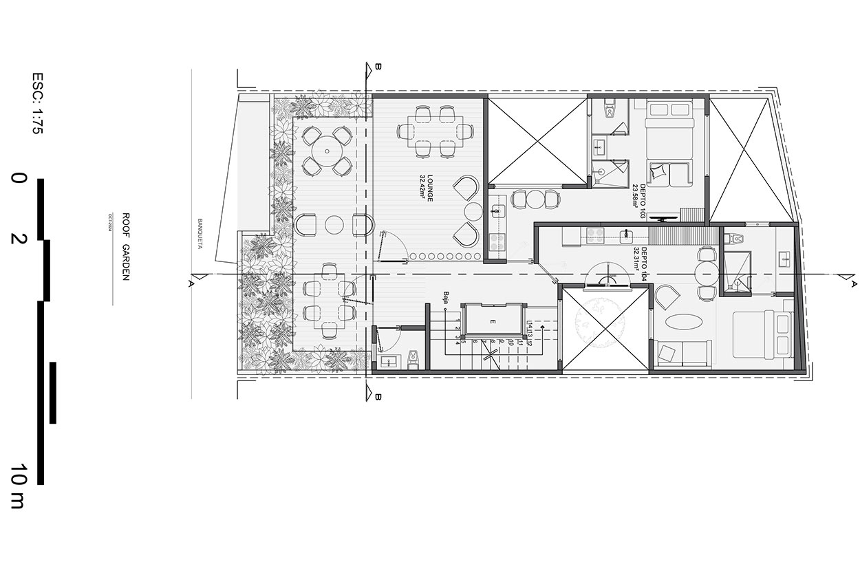
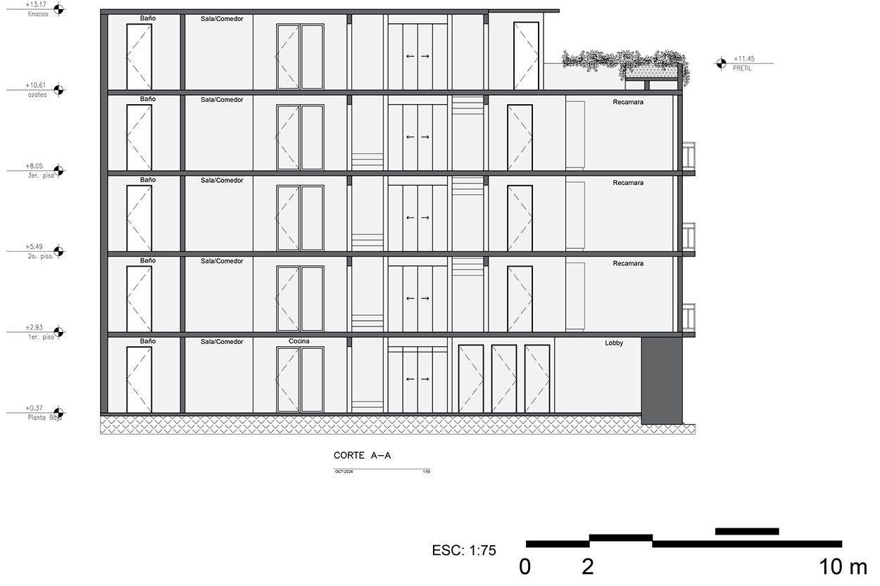
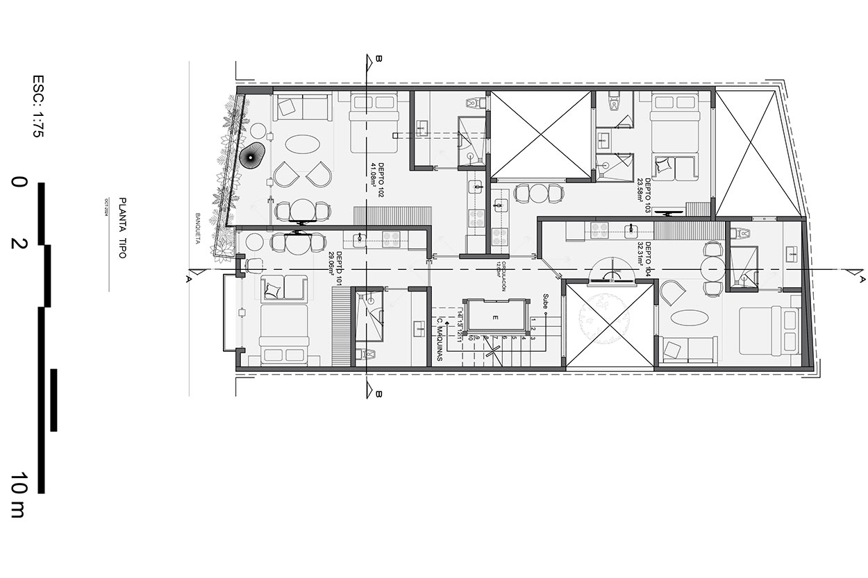
En un barrio donde la ciudad respira a otro ritmo, Casa Theirs reinterpreta lo que ya existe. Un edificio del siglo XX se convierte en vivienda contemporánea, sin borrar su historia ni alterar su escala. Es una forma de renovar sin reemplazar, de habitar lo heredado con mirada actual.

Casa Theirs

Categoría: Residencial
Ubicación: Ciudad de México
Año: 2024
Diseño Arquitectónico: Boué Arquitectos, Arq. Gerardo Boué
Área construida: 663.22 m2
Renders: Ana Sofía Rábago, Fernando Aramoni.

Descripción del proyecto:

En un barrio donde la ciudad respira a otro ritmo, Casa Theirs reinterpreta lo que ya existe. Un edificio del siglo XX se convierte en vivienda contemporánea, sin borrar su historia ni alterar su escala. Es una forma de renovar sin reemplazar, de habitar lo heredado con mirada actual.