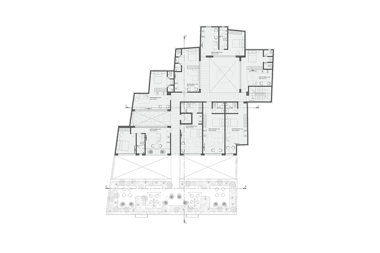
El Callejón No.8

Categoría: Usos mixtos
Año: 2024
Diseño arquitectónico: Boué Arquitectos, Arq. Gerardo Boué
Ubicación: Ciudad de México
Área: 2,268.35 m2
Renders: Ana Sofía Rábago

Descripción del proyecto:

En un callejón que guarda historia, El Callejón No.8 añade una nueva capa de vida. A pasos del MUNAL, el proyecto continúa una transformación silenciosa: vivienda, actividad, cultura. Es la prueba de que la ciudad también se renueva en voz baja, con gestos mínimos que, al sumarse, reescriben el lugar.

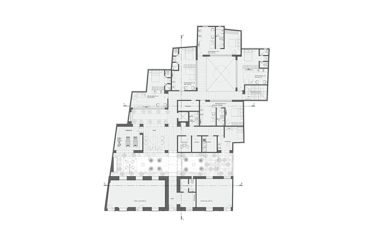
El Callejón No.8

Categoría: Usos mixtos
Año: 2024
Diseño arquitectónico: Boué Arquitectos, Arq. Gerardo Boué
Ubicación: Ciudad de México
Área: 2,268.35 m2
Renders: Ana Sofía Rábago

Descripción del proyecto:

En un callejón que guarda historia, El Callejón No.8 añade una nueva capa de vida. A pasos del MUNAL, el proyecto continúa una transformación silenciosa: vivienda, actividad, cultura. Es la prueba de que la ciudad también se renueva en voz baja, con gestos mínimos que, al sumarse, reescriben el lugar.