LV 24

Categoría: Usos mixtos
Año: 2025
Diseño arquitectónico: Boué Arquitectos, Arq. Gerardo Boué
Ubicación: Ciudad de México
Área: 7,532.18 m2
Renders: Patricio Navarro y Fernando Aramoni

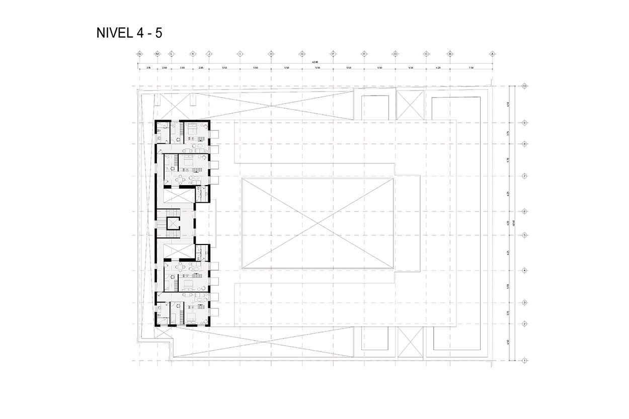
Descripción del proyecto:

LV 24 recupera un predio subutilizado en el Centro Histórico, a metros del Exconvento de Santo Domingo, para desarrollar un conjunto habitacional contemporáneo. A partir de la huella de un antiguo patio, el proyecto propone una solución urbana que promueve la repoblación del centro mediante viviendas amplias, funcionales y adaptadas a las dinámicas actuales.

LV 24

Categoría: Usos mixtos
Año: 2025
Diseño arquitectónico: Boué Arquitectos, Arq. Gerardo Boué
Ubicación: Ciudad de México
Área: 7,532.18 m2
Renders: Patricio Navarro y Fernando Aramoni

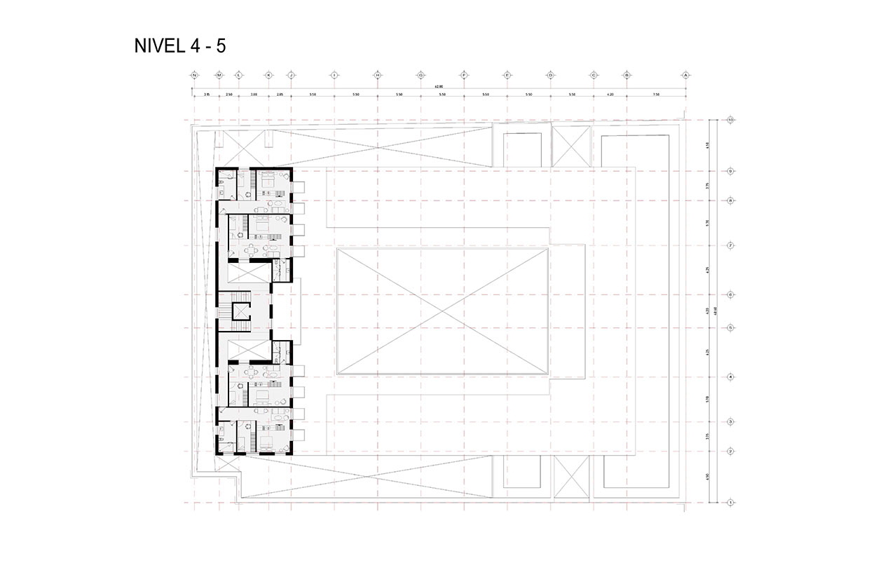
Descripción del proyecto:

LV 24 recupera un predio subutilizado en el Centro Histórico, a metros del Exconvento de Santo Domingo, para desarrollar un conjunto habitacional contemporáneo. A partir de la huella de un antiguo patio, el proyecto propone una solución urbana que promueve la repoblación del centro mediante viviendas amplias, funcionales y adaptadas a las dinámicas actuales.