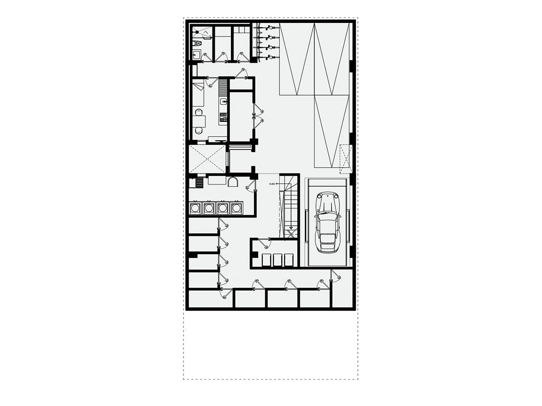
RP 90

Categoría: Residencial
Ubicación: Ciudad de México.
Año: 2025
Diseño Arquitectónico: Boué Arquitectos, Arq. Gerardo Boué
Área construida: 1,164.83 m2
Renders: Patricio Navarro y Fernando Aramoni.

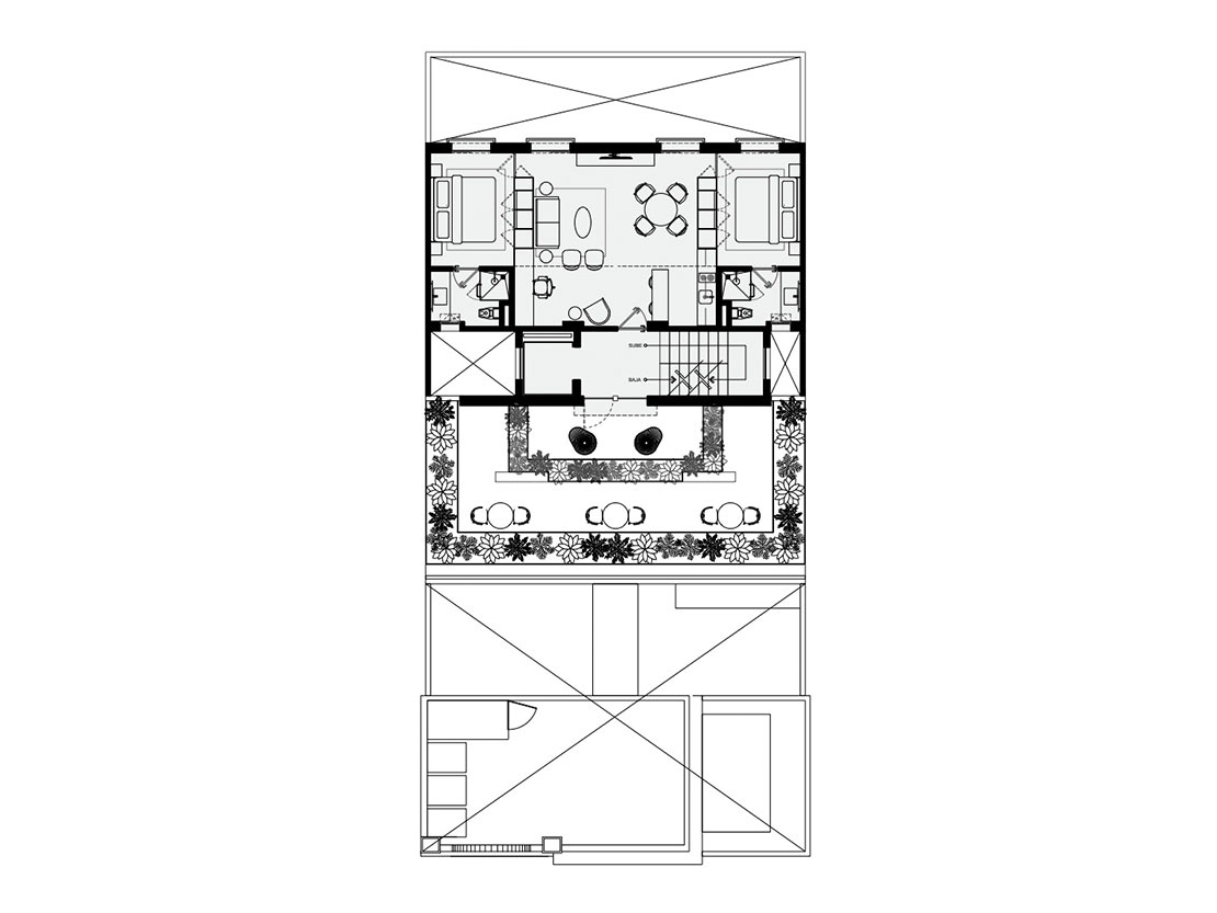
Descripción del proyecto:

RP 90 es una intervención que respeta y transforma. Conserva la primera crujía de una casa de época en la colonia Cuauhtémoc como testigo vivo del siglo XX, mientras un nuevo volumen se despliega hacia el fondo para dar forma a la vida contemporánea. El proyecto propone un diálogo honesto entre pasado y presente, renovando el tejido barrial sin borrar su esencia. Es una apuesta por una nueva forma de habitar, sensible al tiempo, al lugar y a las necesidades actuales.

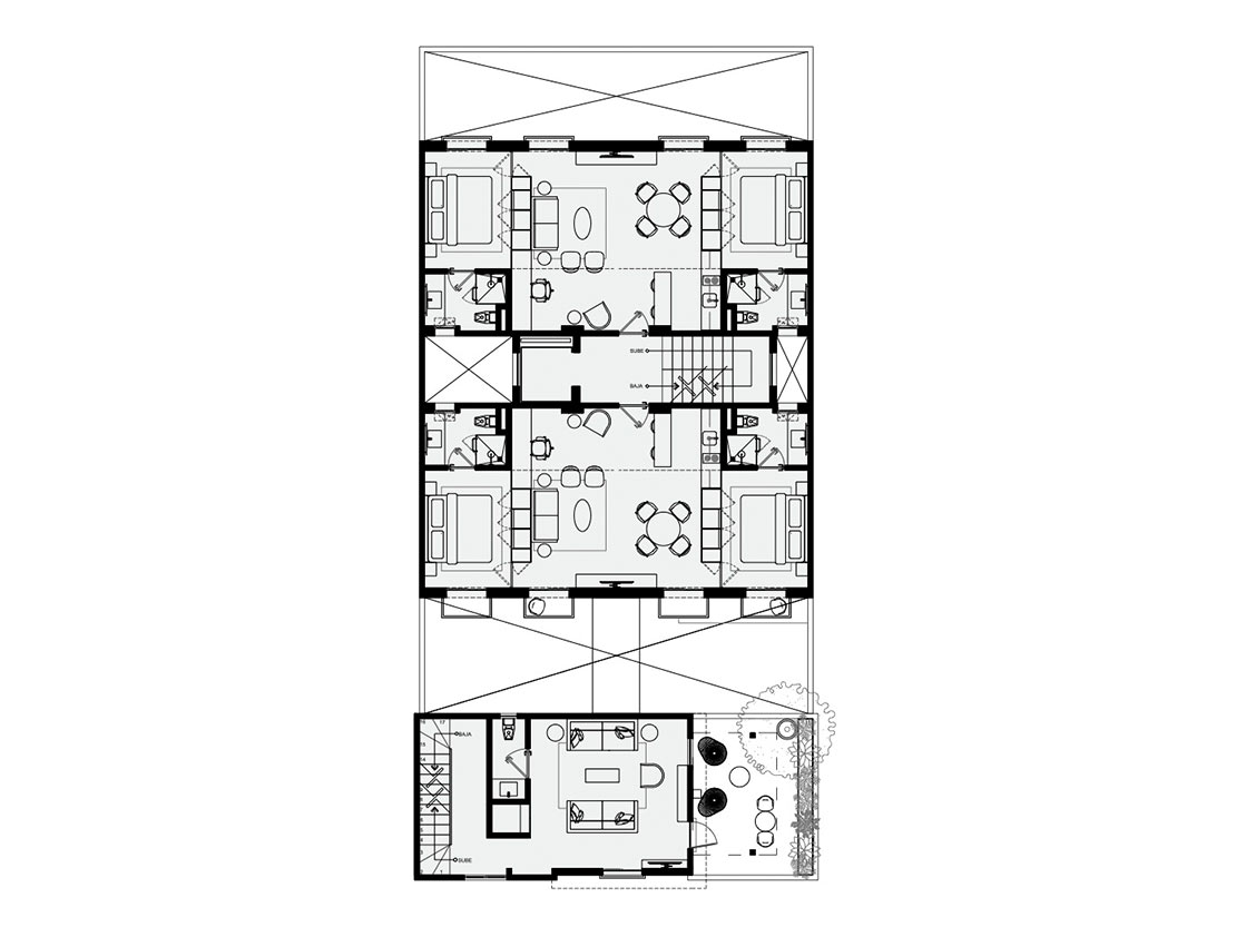
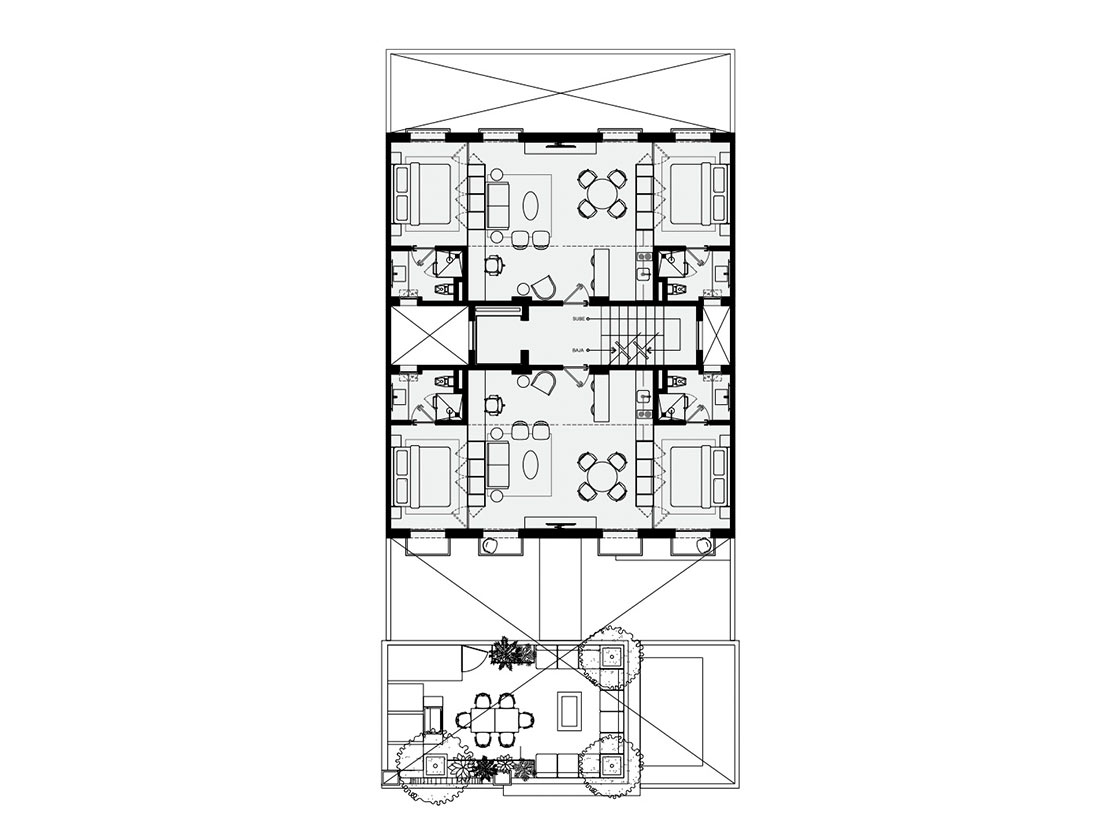
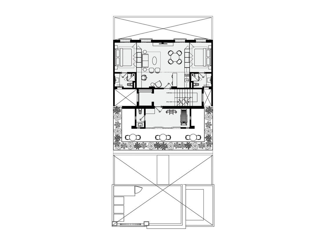
RP 90

Categoría: Residencial
Ubicación: Ciudad de México.
Año: 2025
Diseño Arquitectónico: Boué Arquitectos, Arq. Gerardo Boué
Área construida: 1,164.83 m2
Renders: Patricio Navarro y Fernando Aramoni.

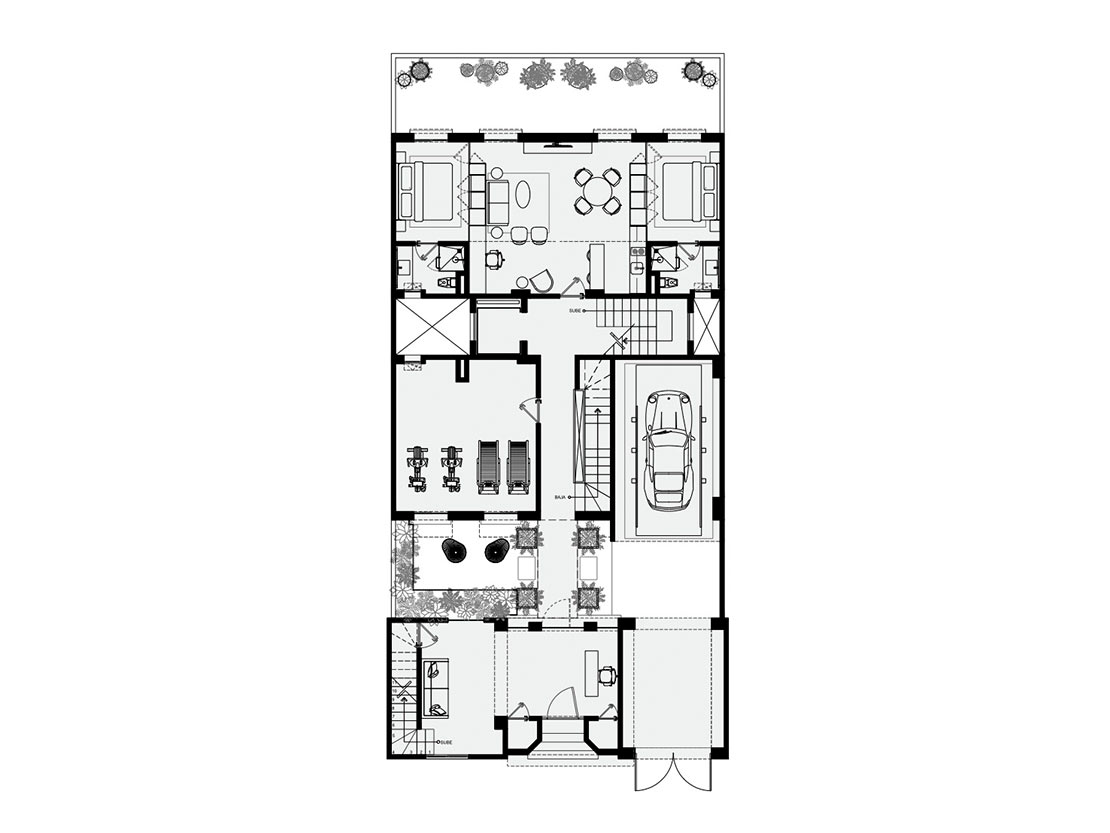
Descripción del proyecto:

RP 90 es una intervención que respeta y transforma. Conserva la primera crujía de una casa de época en la colonia Cuauhtémoc como testigo vivo del siglo XX, mientras un nuevo volumen se despliega hacia el fondo para dar forma a la vida contemporánea. El proyecto propone un diálogo honesto entre pasado y presente, renovando el tejido barrial sin borrar su esencia. Es una apuesta por una nueva forma de habitar, sensible al tiempo, al lugar y a las necesidades actuales.