Tonalá 130

Categoría: Usos mixtos
Año: 2024
Diseño arquitectónico: Boué Arquitectos, Arq. Gerardo Boué
Ubicación: Ciudad de México
Área: 1,327.6 m2
Renders: Ana Sofía Rábago

Descripción del proyecto:

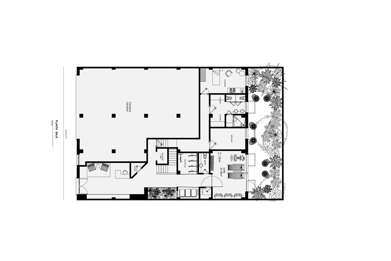
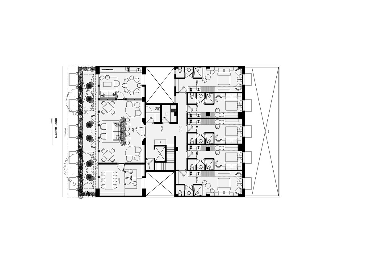
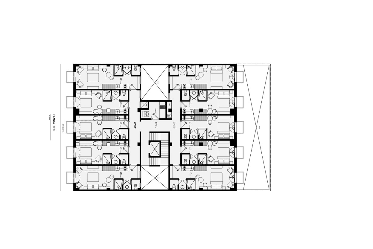
Ubicado en la colonia Roma, Tonalá 130 desarrolla un esquema de vivienda mínima que responde a la alta demanda habitacional de la zona. El proyecto ofrece unidades eficientes, bien conectadas y sustentables, orientadas a jóvenes profesionales que buscan calidad de vida sin comprometer ubicación ni accesibilidad.

Tonalá 130

Categoría: Usos mixtos
Año: 2024
Diseño arquitectónico: Boué Arquitectos, Arq. Gerardo Boué
Ubicación: Ciudad de México
Área: 1,327.6 m2
Renders: Ana Sofía Rábago

Descripción del proyecto:

Ubicado en la colonia Roma, Tonalá 130 desarrolla un esquema de vivienda mínima que responde a la alta demanda habitacional de la zona. El proyecto ofrece unidades eficientes, bien conectadas y sustentables, orientadas a jóvenes profesionales que buscan calidad de vida sin comprometer ubicación ni accesibilidad.