Zempoala 92 – 2024

Categoría: Revitalización Urbana
Ubicación: Ciudad de México
Año: 2024
Diseño Arquitectónico: Boué Arquitectos, Arq. Gerardo Boué
Área construida: 1,840.37 m2
Renders: Ana Sofía Rábago.

Descripción del proyecto:

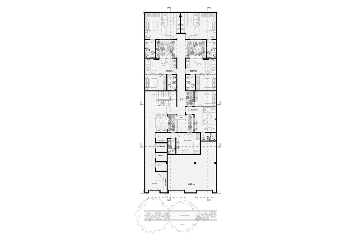
Zempoala 92 es un proyecto de vivienda en la Narvarte que adapta una colonia tradicional a las formas de vida del siglo XXI. Con departamentos eficientes, conectividad urbana y enfoque sustentable, ofrece una alternativa accesible para jóvenes y familias que buscan barrio, ciudad y calidad espacial en equilibrio.

Zempoala 92 – 2024

Zempoala 92 – 2024

Categoría: Revitalización Urbana
Ubicación: Ciudad de México
Año: 2024
Diseño Arquitectónico: Boué Arquitectos, Arq. Gerardo Boué
Área construida: 1,840.37 m2
Renders: Ana Sofía Rábago.

Descripción del proyecto:

Zempoala 92 es un proyecto de vivienda en la Narvarte que adapta una colonia tradicional a las formas de vida del siglo XXI. Con departamentos eficientes, conectividad urbana y enfoque sustentable, ofrece una alternativa accesible para jóvenes y familias que buscan barrio, ciudad y calidad espacial en equilibrio.